2472 Yonge St. Toronto
For Lease
Ask Agent TMI: $19.26 PSF (est.)
Details
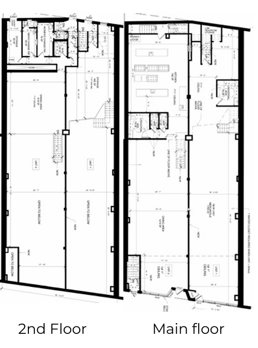
Prime commercial leasing opportunity at 2472 Yonge Street, just north of Eglinton Avenue in Toronto’s vibrant Yonge & Eglinton corridor. Formerly home to a large restaurant with patio potential, the property is being demised into three units and offers excellent Yonge Street exposure, strong signage visibility, and steady pedestrian traffic. Availability includes Unit 2 with 2,418 SF ground floor retail plus 1,180 SF mezzanine, and a 4,297 SF lower level previously used as a wedding hall with kitchen (Unit 1 leased). Ideal for retail, service, medical, showroom, or office uses in one of Midtown Toronto’s most established commercial nodes.



